CLIENT ZONE
Indy Chou -Master Bedroom Remodel, Entry Closet Remodel
Project Overview:
- Full remodel of the master bedroom, including structural changes - total existing closet demolition, creating new walk-in closet by building new wall, Moving the wall in the corridor, opening the supporting wall and adding new walk-in closet space. Moving the window and Installing the the window. Fixing / Installing outside siding.
- Remodeling and expending the entry closet.
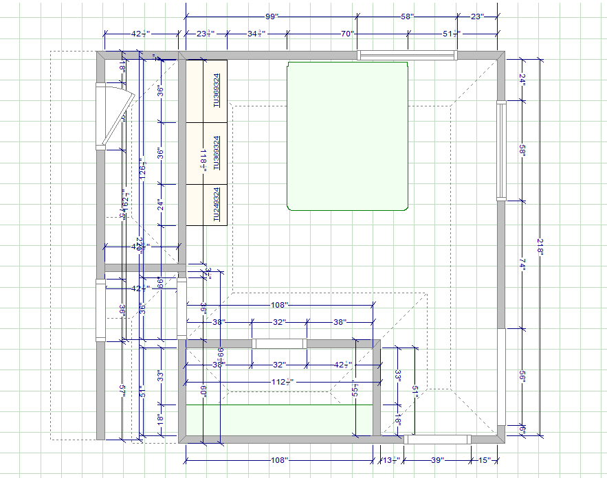
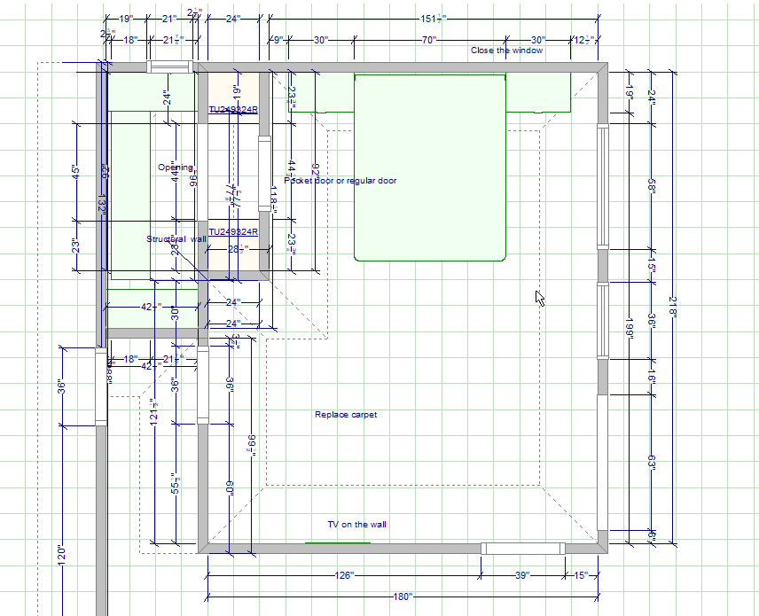
Master Bedroom
SCOPE OF WORK
Full remodel of the master bedroom, including structural modifications. The project includes demolition of the existing closet and construction of a new walk-in closet by framing new walls. Scope also includes relocating the corridor wall and modifying an existing load-bearing wall to create additional walk-in closet space, as required.
Work further includes relocating and installing a new windows, along with all necessary exterior repairs, including installation and repair of exterior siding in affected areas.
DEMOLITION
- Demolish and remove the existing closet.
- Open the existing structural wall (approximately 45" x 90") to create a new entrance to the closet.
- Demolish the corridor wall, including removal of the existing tall pantry.
- Remove existing window.
- Remove existing carpet.
- Haul away and dispose of all demolition debris.
FRAMING, ROUGH-IN
- Bedroom: Frame new walls measuring approximately 24" x 94" and 94" x 94", including a framed door opening.
- Closet: Close existing door from guest bedroom.
- Corridor: Frame a new wall approximately 42" x 94".
- Frame a new window opening in the closet (approximately 21" x 64").
- Frame and close the opening where the old window was removed.
- Create and frame a new window opening in the bedroom (approximately 34" x 64").
ELECTRICAL
- Closet: Provide new electrical wiring and install receptacles per approved plan.
- Bedroom: Provide new electrical wiring and install receptacles per approved plan, including provisions for TV, fireplace (if applicable), wall-mounted lighting, and new recessed LED lighting as required.
DRYWALL & FINISHING
- Install drywall on all new and affected walls and ceilings.
- Install drywall on the quest bedroom side (where the door was closed)
- Patch and close all existing openings and holes.
- Tape, mud, sand, and finish all drywall surfaces, including the closet opening, ready for paint.
DOOR AND WINDOWS INSTALLATION
Install interior doors (1 door)
Install windows (2 windows)
SIDING
- Adjust and repair exterior siding where the window was removed or relocated.
- Paint affected exterior siding areas to match existing finish.
FLOORING
Install new carpet in the bedroom and closet areas.
PAINTING
- Paint walls and ceilings in the bedroom and new closet.
- Paint wall in the quest bedroom where the door was closed
- Paint baseboards.
- Install new baseboards.
- Install wall-mounted lighting and recessed lighting fixtures.
Notes:
- A finalized electrical plan is required prior to the start of electrical work.
- This scope assumes the existing electrical panel has sufficient capacity; no new subpanel is included.
- Licensed electrician to verify main panel capacity prior to installation.
- Paneling and decorative elements are not included. Design to be approved before the work begins.
Project 1 : Estimated Cost before tax: $14000
Entry zone and closet
PROJECT 2 : ADDING ADDITIONAL CLOSET AND CONVERTING EXISTING : SCOPE OF WORK
Design, plan, finished materials and detailed scope of work to be discussed. This process ensures the final space is functional, comfortable, and aesthetically pleasing.
- Expend existing closet on the right and left for walk-in closet with door in the corridor
- Create the entry group facing the entrance
- Use the striped panels for finishing and uniform look
Lighting:
- Install wall light fixture above vanity.
- Install two recessed ceiling lights
- Install LED strip light in the bathtub niche (top).
- Client is responsible for supplying the LED shower kit.
Paint:
- Paint walls and ceiling. Paint to be provided by the company.
Project 2 : Estimated Cost before tax:
$6,900 Labor + Rough Materials





































