CLIENT ZONE
Project Estimate
Client Name: Megan
Location: Kent, WA
Scope of Work: House Extension, Bathroom/Closet Addition
Bathroom Addition Concepts & Plans
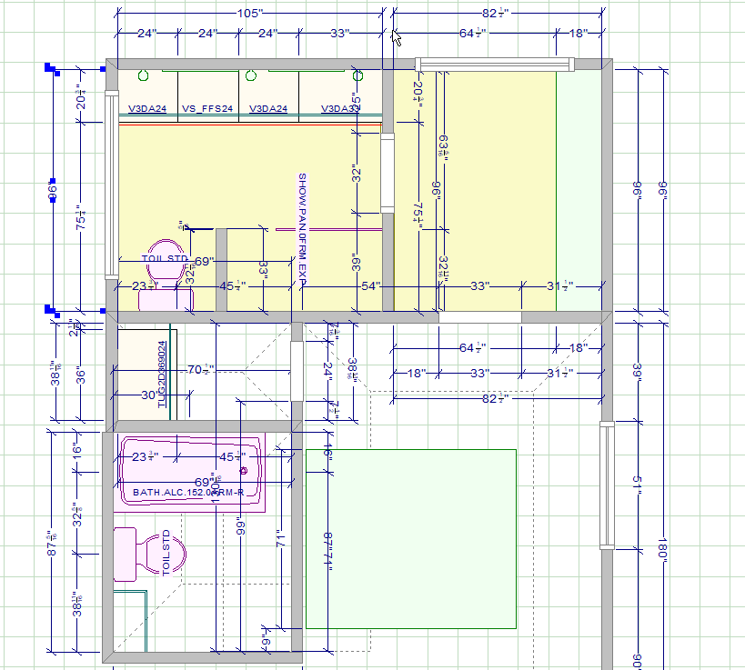
OPTION 1
Addition Area: 8 ft × 16 ft | Total Area: 228 sq. ft. The plan is designed for maximum functionality, making excellent use of every square foot. 2 closet rooms
- Highly efficient and practical layout
Two separate closets. Includes a smaller closet (ideal for a his closet or linen storage with shelving or a tall linen cabinet) and a larger her closet, providing organized and flexible storage solutions. - Spacious vanity area - 68 inch
Big vanity counter space with drawers , allowing for: - Two sinks, Two wall mirrors, Wall-mounted lighting
This setup supports comfortable daily use for two people. - Abundant natural light: Large windows in both the bathroom and closet areas bring in natural light, improving comfort, brightness, and ventilation.
- Enhanced privacy: The toilet is discreetly positioned behind the shower pony wall, keeping it visually concealed from the main bathroom area.
- Flexible door options
- A sliding door can be installed between the master bedroom and the bathroom/closet area to save space and create a modern look.
- A pocket door at the bathroom entrance further improves space efficiency and ease of movement.
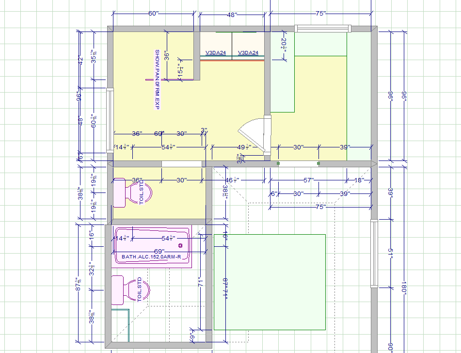
OPTION 2
Addition Area: 8 ft × 16 ft (228 sf) + Converting /Remodeling the existing Closet Area 3 ftX6 ft (18) to a toilet area.
The plan is designed for maximum functionality and more privacy (separate toilet area) . Has 1 Closet room.
Additional work Involves closing the door to existing closet ( put drywall on 2 walls, finishing and painting entire adjusted wall .
Additional second opening needed to structural wall to provide access to a toilet from the bathroom.
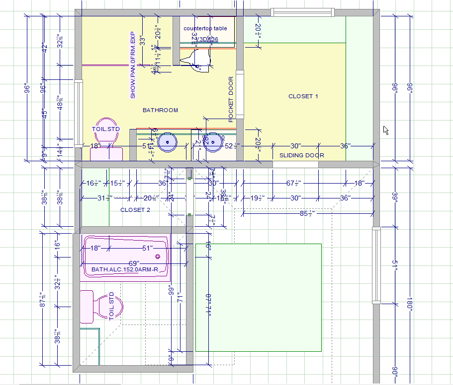
OPTION 3
Addition Area: 8 ft × 16 ft (228 sf)
The plan is designed for maximum functionality. Toilet is behind a pony wall for privacy. Has 2 Closet rooms, big vanity + additional countertop space and storage.
- Highly efficient and practical layout
Two separate closets. Includes a smaller closet (ideal for a his closet or linen storage with shelving or a tall linen cabinet) and a larger her closet, providing organized and flexible storage solutions. - Spacious vanity area - 60 inch
Big vanity counter space with drawers , allowing for: - Two sinks, Two wall mirrors, Wall-mounted lighting
This setup supports comfortable daily use for two people. - Additional countertop space 36" - can be used as a table with storage for baskets underneath.
- Abundant natural light: Large windows in both the bathroom and closet areas bring in natural light, improving comfort, brightness, and ventilation.
- Enhanced privacy: The toilet is discreetly positioned behind the shower pony wall, keeping it visually concealed from the main bathroom area.
- Flexible door options
- A sliding door can be installed between the master bedroom and the bathroom/closet area to save space and create a modern look.
- A pocket door at the bathroom entrance further improves space efficiency and ease of movement.
























