Anna - Kitchen Remodel
PHOTOS
SCOPE OF WORK.
Start Date: Monday, January 26
- Preparation and Demolition
Defined work areas - Kitchen and washer/drier area - see the plan.
Remove existing 42" x 42" kitchen window.
Remove shiplap from all designated walls.
Remove old LVP flooring in the kitchen area.
Remove old kitchen cabinets.
Remove existing tiles (approx. 50 sq. ft.) in the washer/dryer area.
Demolish and prepare all areas according to the renovation plan.
Disconnect all kitchen appliances and relocate them to the living room.
Disconnect washer and dryer; move all appliances to the living room; protect appliances and furniture
with covers.
Notes: Old: refrigerator, stove, and hood will be replaced with new appliances and disposed by
appliance company. Appliance company will install new appliances. Washer and dryer will remain and
be reinstalled by contractor at the end of the project.
Contractor responsible for debris removal and dust protection for the rest of the house during
construction.
2. Rough-In, Electrical & Plumbing
Window Installation: Install new 42" x 42" window with trim in the same location.
Rough-In Work:
Hood - Relocate ceiling duct for the hood by 12 inches to match new stove location.
Install new drywall as needed; patch ceiling and walls for a smooth finish prior to painting.
Electrical: Install 4 recessed ceiling lights in the kitchen. Install 2 wall sconces with electrical
boxes/outlets—one on each side of the window.
Plumbing: Adjust dishwasher plumbing and drain location if needed per the final kitchen layout.
3. Finishing Work
Painting: Paint ceilings and walls in the kitchen and washer/dryer area.
Baseboards: Install baseboards.
Flooring: Install 298 sq. ft. of 24" x 48" tile flooring in the kitchen and washer/dryer area.
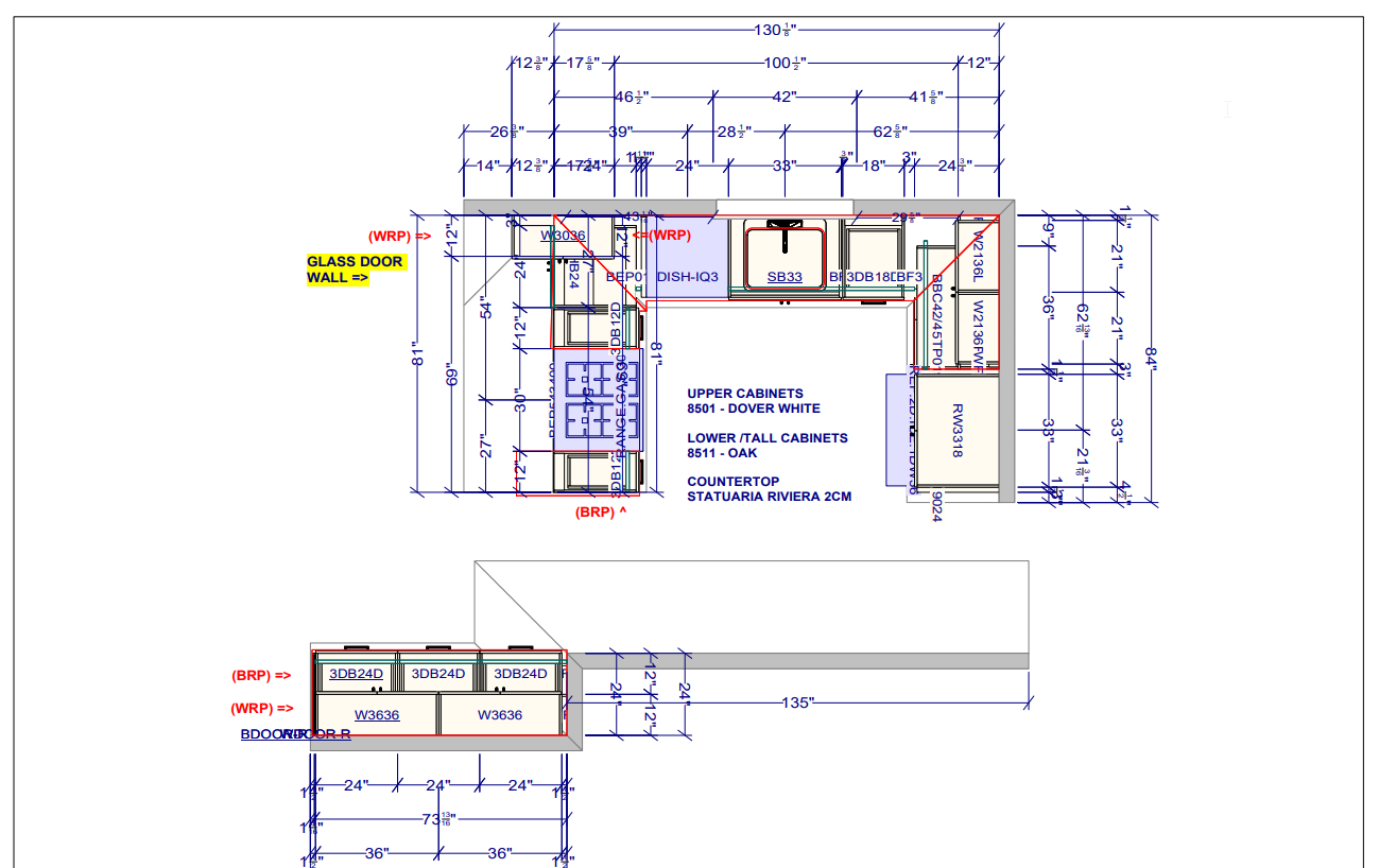
Cabinet Installation: Install new cabinets delivered by Pius (pre-assembled). Cabinet installation to
follow final approved plan.
Countertops: Countertop & sink installation will be completed by Pius following cabinet installation.
Backsplash: Install subway tile backsplash in horizontal layout per plan.
All final selection for grout, trim, paint to be coordinated with the client.
Final Touches: Reinstall and reconnect washer and dryer. Perform final cleanup and site preparation for
client inspection.
Total Cost Before tax: $12300
Suggested List of Material
PURCHASE LIST:
Window: Type: sliding window, frame size: 41.5"x41.5" Opening Size: 42"X42"
Check
Home depot $416
Faucet:
Sink
For Sink Cabinet -33" Min Sink size 30" or less/
KRAUS Standart Pro 30 -inch Undermount Single Bowl 16 Gauge Stainless Steel Kitchen Sink, KHU100-30 $336
Kitchen Cabinets
Order from Pius according Kitchen Plan. Include assembling and delivery to the address. Delivery date: January 29
Kitchen Countertop
Order from Pius according Plan. Cut and installation on the site
Cabinet hardware
- Amerdeco 10 Pack Cabinet Pulls 5 Inch (128mm) Color: Black $36 - Base - 13, Wall-10
Tile - Backsplash
Clara 2.75" x 11" Glossy Porcelain Tile in Ivory To order 46 sf +waste 10-15%= 52 sf tiles \ up to wall cabinets bottom \ $250
Tile - Floor
Luxe Fog Matte Porcelain Tile FOG Size: 24 x 48 Surface: 300 sf+ waste 10-11% =372sf tiles $1496
Lighting
Recessed Lights Dimmable, 6 in pack - $43.98
Wall Lamps near window $149.99
Wall lamp for wall $146.99
Appliances
$4804 with tax
Cost before tax : $12,300
Included: Labor and Rough Materials
Project Duration: 2 weeks
Included Warranty: 3 years











